Místo: Dvůr Králové nad Labem
Rok: 2021
Objednatel: Krajský úřad Královehradeckého kraje
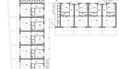
Pro město Dvůr Králové n. Labem jsme řešili novostavbu startovacích bytů v ulici Seifertova a taktéž zastavovací studii budoucí parcelace přilehlých pozemků pro bydlení v rodinných domech. Bytové pavlačové domy byly situovány do tvaru písmene L s mezilehlým poloveřejným prostranstvím a vymezeným dětským hřištěm. Pavlačový dům je tvořen třemi podlažími a dohromady zahrnuje 24 bytových jednotek. Z hlediska dispozice jde o byty malometrážní (2+KK) a mezonetové (4+KK). Každá bytová jednotka disponuje balkónem či terasou a v případě přízemních bytů privátní předzahrádkou. Celý návrh tak vytváří příjemné a funkční prostředí pro bydlení mladých rodin.







