Místo: Pardubice
Rok: 2021
Objednatel: Statutární město Pardubice
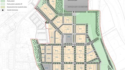
Lokalita „Nová Cihelna“ patří bezesporu mezi nejvýznamnější rozvojové plochy v Pardubicích. Rozkládá se na severovýchodním okraji města mezi ulicí Hradecká a meandrem starého Labe. Cílem územní studie bylo vytvořit osnovu veřejných prostranství nové městské čtvrti a navrhnout uspořádání rezidenčních bloků. V území bylo navrženo 80 rezidenčních bloků s půdorysem vycházejícím ze čtverce 60 × 60 m. Důraz byl kladen na přirozené lidské měřítko, hierarchii prostranství, určitou míru soukromí a sociální kontrolu. Zástavba nabídne celou škálu venkovních prostorů – od soukromých předzahrádek bytů až po dětská hřiště, sportovní plochy a další veřejně využívané prostory mezi domy.







