Místo: vodní nádž Rozkoš, Česká Skalice
Rok: 2018
Objednatel: Dobrovolný svazek obcí Kladská stezka
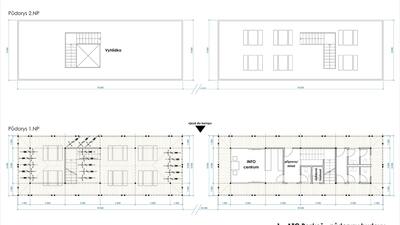
Studie vychází z již rozpracovaného projektu cyklookruhu kolem vodní nádrže Rozkoš a nově ho doplňuje o další aktivity. Naším cílem bylo navrhnout odpovídající zázemí pro cyklisty i ostatní návštěvníky regionu za účelem zvýšení atraktivity břehů vodní nádrže Rozkoš. V území bylo situováno několik drobných staveb, které vhodně doplní a zúročí zdejší přírodní scenérii. Jedná se o modulární dřevěné skeletové konstrukce s plochou střechu, pod níž je vestavěno potřebné zázemí. Součástí řešení byl rovněž návrh a umístění drobného mobiliáře, informačního a orientačního systému a přístřešku pro turisty.







